Muzeum 20. století, Berlín

Muzeum 20. století, Berlín
Studie 2015
Projekt
Realizace
Autoři Jan Bárta, Jitka Brablecová, Petra Hrubešová, Michaela Kloudová, Jan Šépka

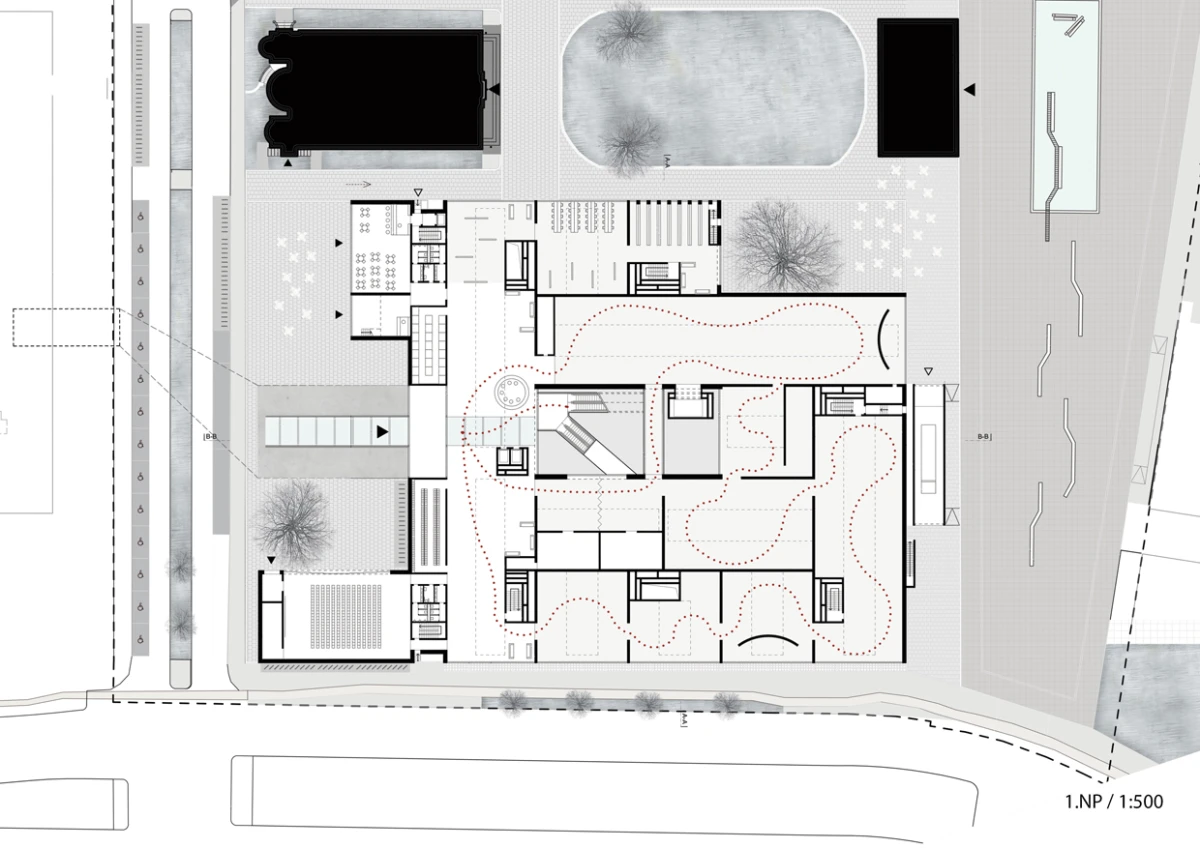
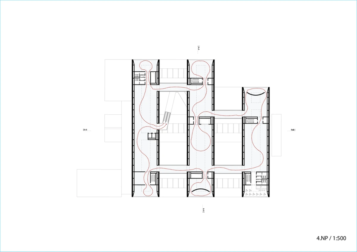
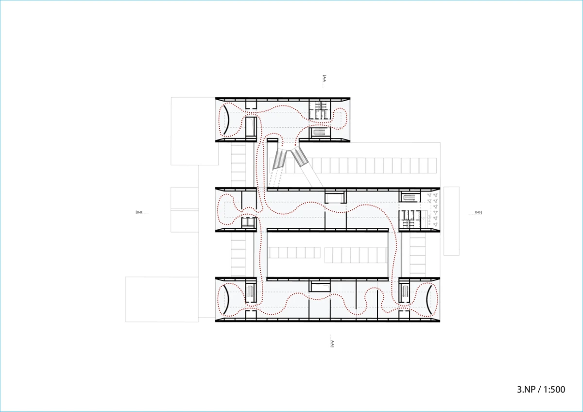
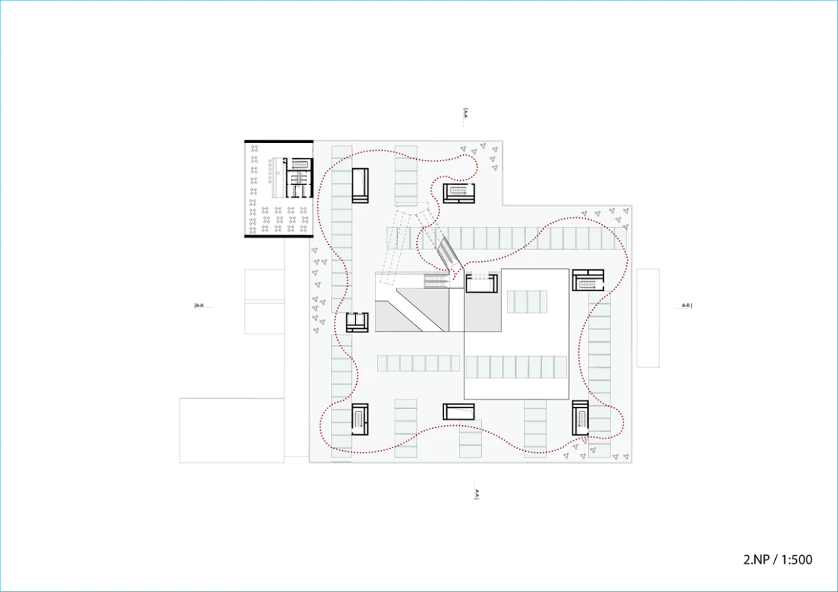
Řešení muzea 20. století v sousedství Neue Nationalgalerie od Miese van der Rohe, Filharmonie a Státní knihovny od Hanse Scharouna, navíc v bezprostřední návaznosti na kostel St. Matthäus, jako původní dominanty místa, je nelehkým úkolem. Jedná se o místo, které nemá přesně definované hranice, ani uliční síť. Jednotlivé stavby působí v území jako jedinečné solitéry, které nemají ambici začleňovat se do rostlé soustavy města. Všechny tři zmiňované stavby jsou také, i s odstupem času, považovány za určité symboly architektury a své doby. Naše koncepce se pokouší navázat na tento svět výrazně dominantních staveb. Vůdčí ideou návrhu je prostorový rošt, který do svých útrob propouští světlo jako primární horní osvětlení všech výstavních místností. Denní světlo se tak dostává i do přízemí celé stavby. Se světlíky pracujeme jako s „obřími“ svítidly a zásobníky vysoce kvalitního světla, které využívají přírodní i elektrické zdroje. Jako další charakteristický prvek muzea považujeme také symbol cesty, která návštěvníka navádí a umožní mu celý objekt snadno projít. Cesta a světlo jsou tedy našimi hlavními motivy, které mají primárně za cíl podpořit vystavované objekty. Naše inspirace se proto obrací k sálům muzeí z 19. století s horním přirozeným osvětlením, které považujeme za ideál i pro dnešní dobu. Návštěvníky ale nechceme ponechat ve výstavních prostorech pouze s horním osvětlením, a proto je záměrně na několika místech umožněn výhled z oken na ulici. Součástí celkového řešení nejsou jen vnitřní prostory, ale i venkovní terasa nad prvním podlažím. Zde by měla být vystavena řada soch, ale je zde možné také pořádat různé společenské akce. Tento prostor, který je již součástí muzea dává možnost sledovat dění vně objektu a zapojuje ho tak přirozeně do soustavy kulturních paláců. Nechceme tímto způsobem rozdělovat dům na sokl a další část. Chápeme celý objekt, jako kompaktní tvar, který se má chovat ve všech částech, kde jsou výstavní prostory, stejně. Všechna podlaží jsou propojena eskalátorem, kterým se může návštěvník dostat také do suterénu s výstavou věnovanou umění před rokem 1945 a projít tak do sousední Neue Nationalgalerie. Novostavba je kompletně pojata jako odlitek z monolitického železobetonu.