Rekonstrukce Sovových mlýnů, Praha

Rekonstrukce Sovových mlýnů, Praha
Studie 1998
Projekt
Realizace
Autoři Petr Burian, Petr Hájek, Tomáš Hradečný, Jan Šépka

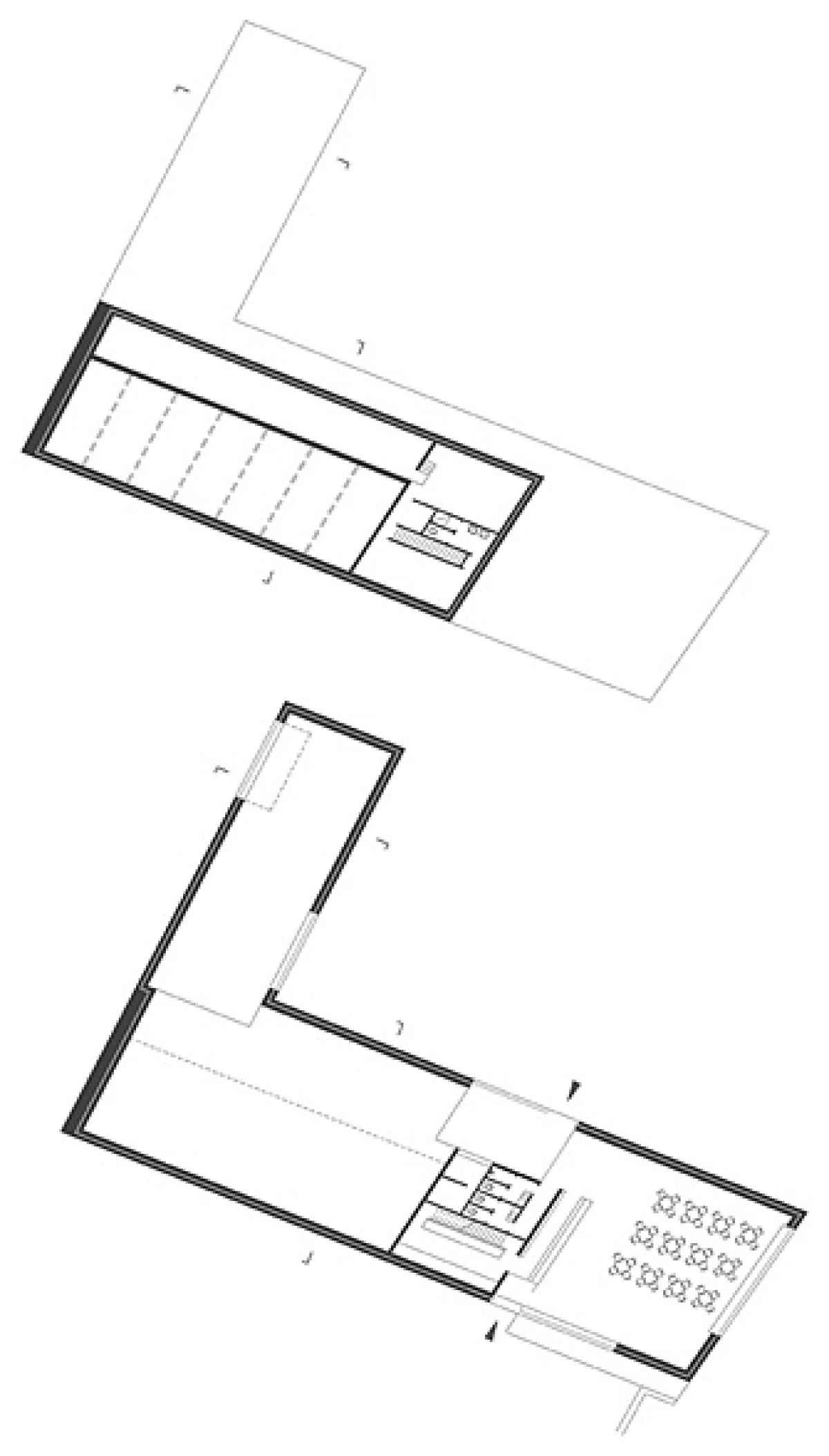
Základním principem studie je respektování stávající stavby Sovových mlýnů s výraznými štíty, která je pro dané místo dominantní. Do původní stopy odstraněného hospodářského objektu umísťujeme horizontální novostavbu, která na rozdíl od současného stavu otevírá pohled z vnitřního dvora na Staré Město a Vltavu. Novostavba je pojata jako dům - zeď s pěti velkými okny a je využita pro instalování krátkodobých výstav. V části orientované k řece je navržena kavárna s možnou variabilitou uspořádání pro různé společenské akce. Novostavbu chápeme jako hrubý kámen, do kterého jsou přesně vyfrézovány kubusy vzájemně se protínající a navazující na sebe. Některé z těchto kubusů prostupují povrch hmoty ve formě velkých otvorů a vytvářejí tím okna. Každé ze stěn je přiřazen právě jeden otvor, který přesně rámuje určitý pohled. Dům je obložen hrubě opracovanými černými čedičovými pásky. Interiéry jsou provedeny z broušeného betonu.

v roce 1998 3. místo v architektonické soutěži